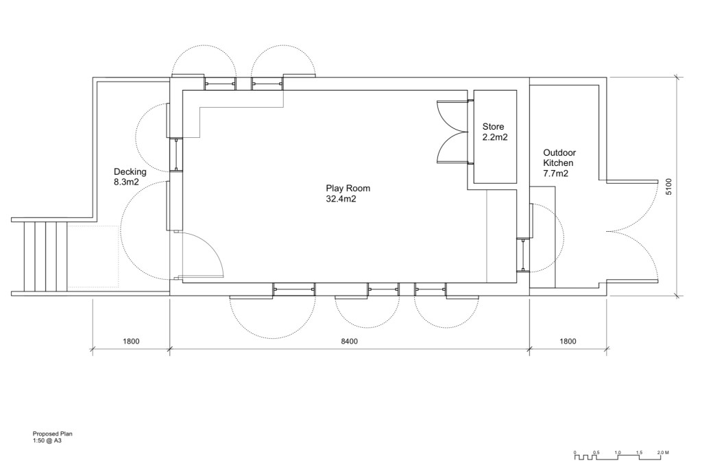
Our architects are continuing to develop our planning application using information from our Preliminary Ecological Appraisal, Topographical Study and feedback from the pre-planning application we submitted for our original project.
Here are their latest drawings for our outdoor shelter.





