At CVN we are passionate about the benefits of learning outdoors in the natural environment and we spend as much time as we can in our local woodland.
We are continuing to develop our plans to move our service to the woodland and have recently revised our original business plan to facilitate this move. The revised plan sets out a phased approach which will better help us achieve our long term goal.
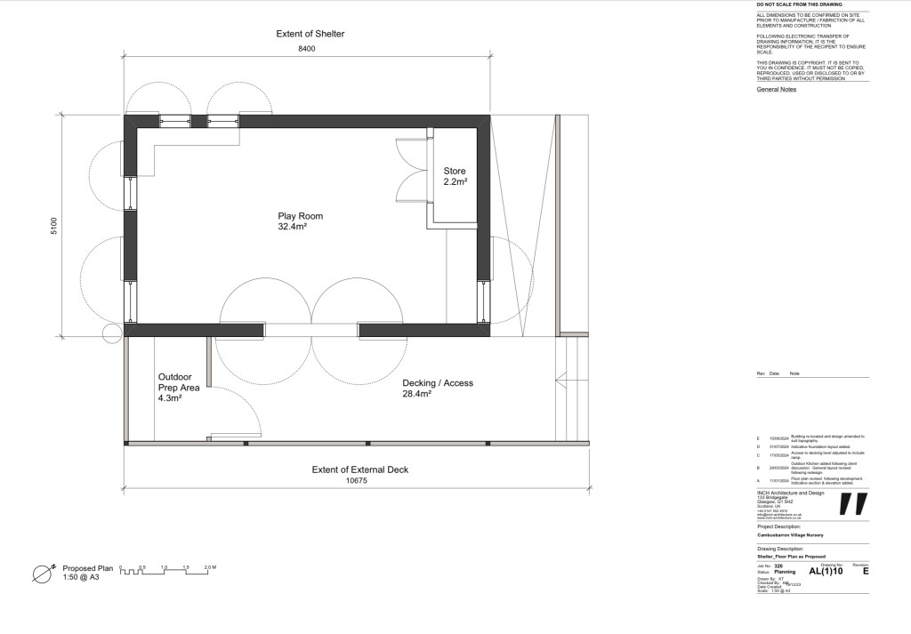
As a first step we plan to convert our service to an outdoor nursery. This essentially means that, instead of operating in the woods on a couple of days a week, we will be in the woods full time. As an outdoor service we do still need some kind of indoor space and we are planning to build a large cabin type structure roughly equivalent to the room we currently use in the community centre.
We have already sourced some of the funding needed to allow us to build this shelter which will support children’s experiences particularly in the extremes of weather conditions. The shelter will provide basic heat (likely by means of a wood burning stove) and we intend to have access to power via solar panels. The shelter will allow us to extend play and learning and support children to have positive experiences particularly in colder, wetter weather conditions.




As we develop our service above we will be gaining significant knowledge and experience which will feed into the larger project which we will pursue in the background.
So, while our longer term aim remains to create a bespoke facility in the woodland, we will be able to enhance children’s play and learning opportunities in the meantime. The aims of the larger building include to facilitate immersive and sustained engagement in the woodland environment which in turn will promote the development of environmental awareness, social responsibility and community pride. These aims remain equally appropriate for this initial phase of the project.
We are working with Inch Architecture and local suppliers to establish the design and location of the shelter which we intend will complement the larger project.
The original plans for the larger project remain. The design below is still a concept and we continue to welcome feedback.


Take a look at some of the documentation attached to our project here:
Revised Business Development Plan by Community Enterprise October 2023
Feasibility Study by Community Enterprise
Business Plan by Community Enterprise
Initial plans by Inch Architects
We have been grateful to have received funding from a variety of sources to help develop our plans.




