We are delighted to report that our architects have today submitted our planning application to Stirling Council!!
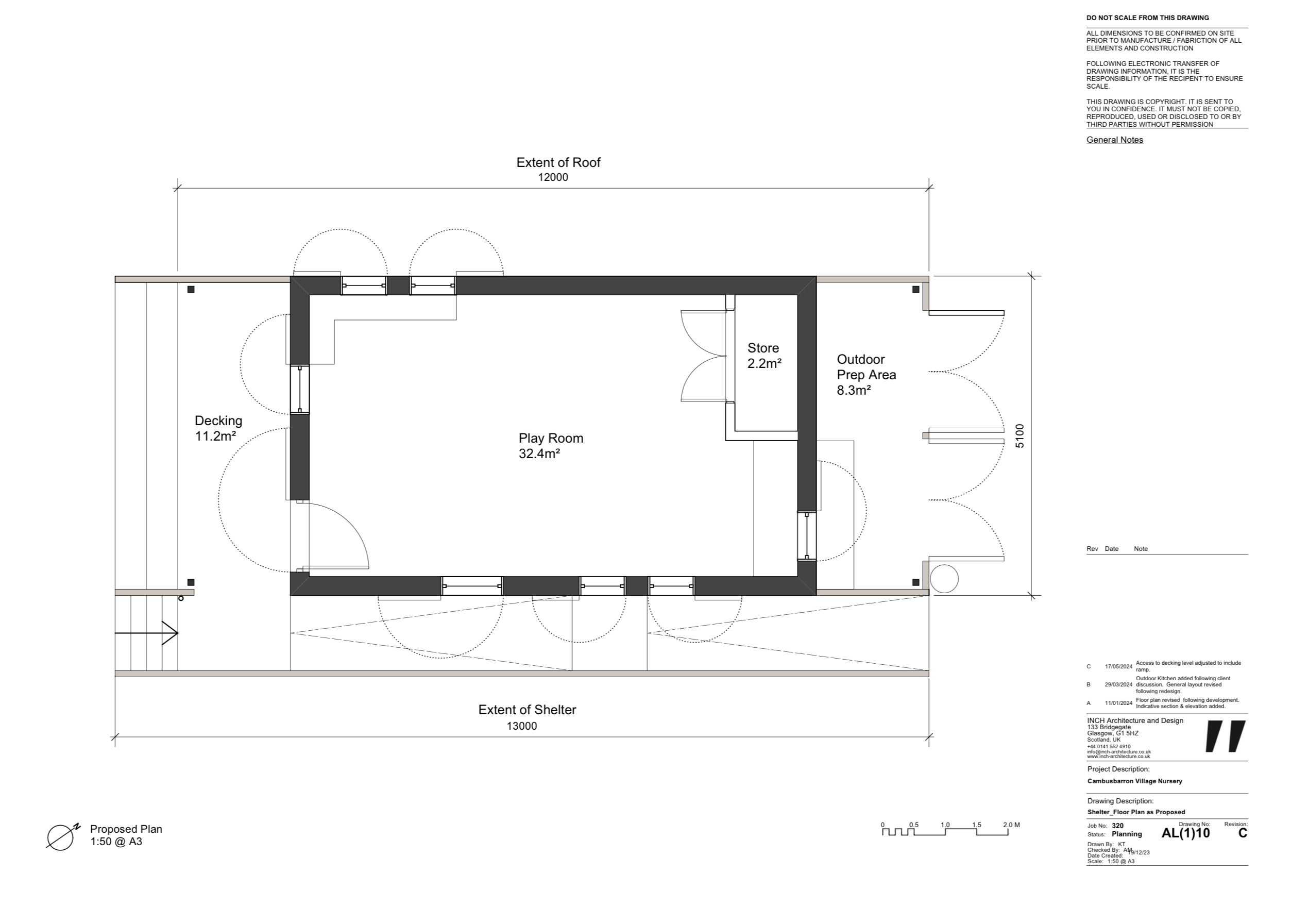
This application is to build a wooden shelter in the area next to the walled garden. The shelter will support children’s play and learning experiences in the woods. It will form a base from which our adventures can take place, it will be somewhere to store our equipment and form an emergency shelter in extremes of weather.
This is a significant step in CVN’s journey and worthy of celebrating 🎉
The full report can be read here






