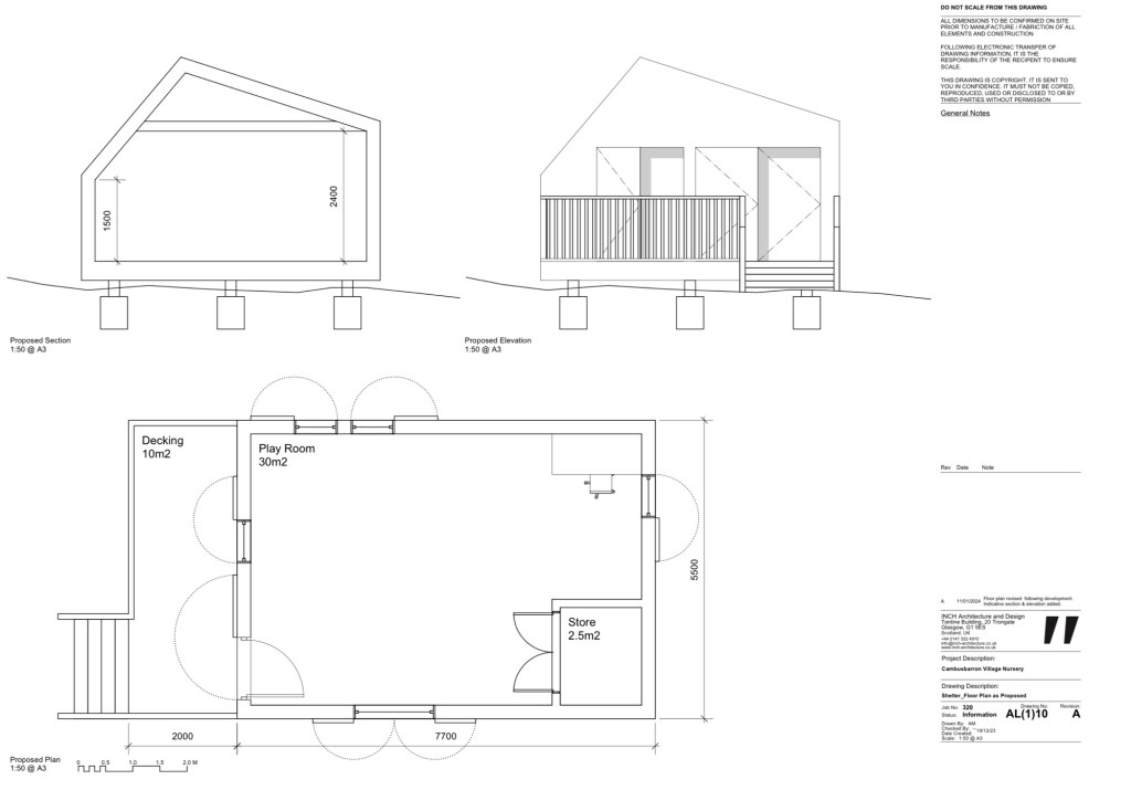
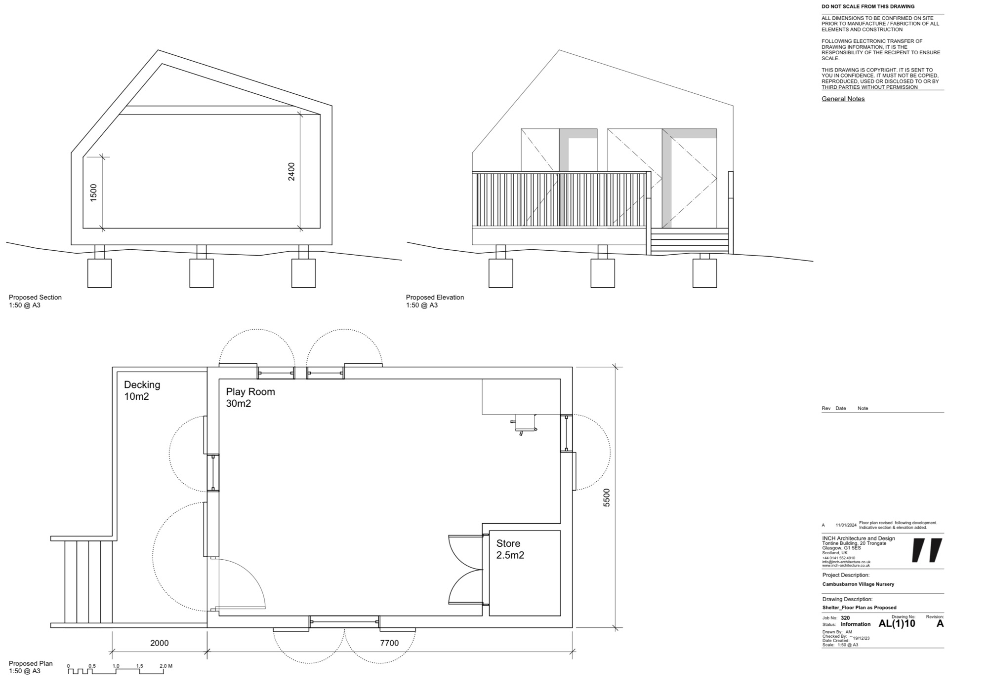
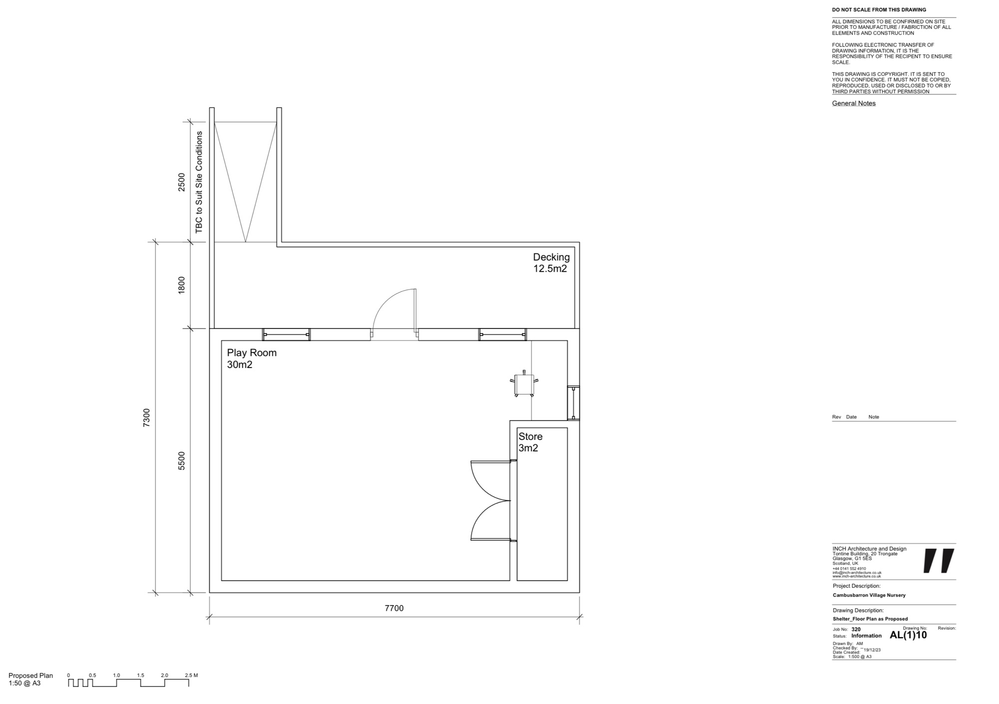
We are pleased to report steady progress towards developing the next phase of our plans to move our nursery service to the woods. During this interim phase we plan to build a shed which will serve as a shelter and storage area and will support our children’s play and learning in the woodland.
This week we met with members of the Cambusbarron Community Development Trust board of trustees and agreed a rough position for our shelter. Have a look at this (very amateur) drone footage showing the identified location (adjacent to the Walled Garden). The taped area is very approximately the size of the proposed shelter (about 7mx5m).
Our architects are working on our planning application and we intend to submit this in the next few weeks.
We will be at the CCDT Open Day in the Community Centre on Saturday Jan 27th between 11am and 4pm if you want to talk to us or find out more about our plans.
Below are suggestions for what our shelter could look like.


